Bouwproject

Tot begin 2026 vonden de activteiten van de oudere takken van Scouts Sint-Paulus 3e Leuven plaats in lokalen achter de Sint-Antoniuskerk op de Schreursvest en die van de jongere takken van Scouts Sint-Paulus en Scouts Intakt Leuven in de lokalen op het Lemmekesveld. De lokalen op het Lemmekesveld werden gebouwd rond 1978. Ze waren sterk verouderd en sinds 2024 afgekeurd voor jeugdwerking om wille van veiligheidsredenen. Stad Leuven stelt sindsdien tijdelijk een lokaal ter beschikking in het Van Ostaijenpark. Recent werden ook de lokalen aan de Schreursvest afgekeurd.

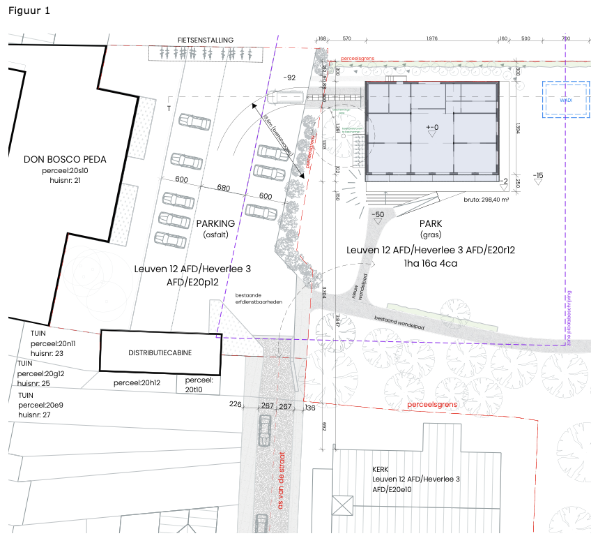
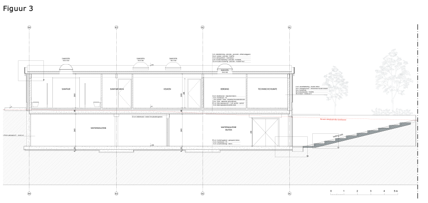
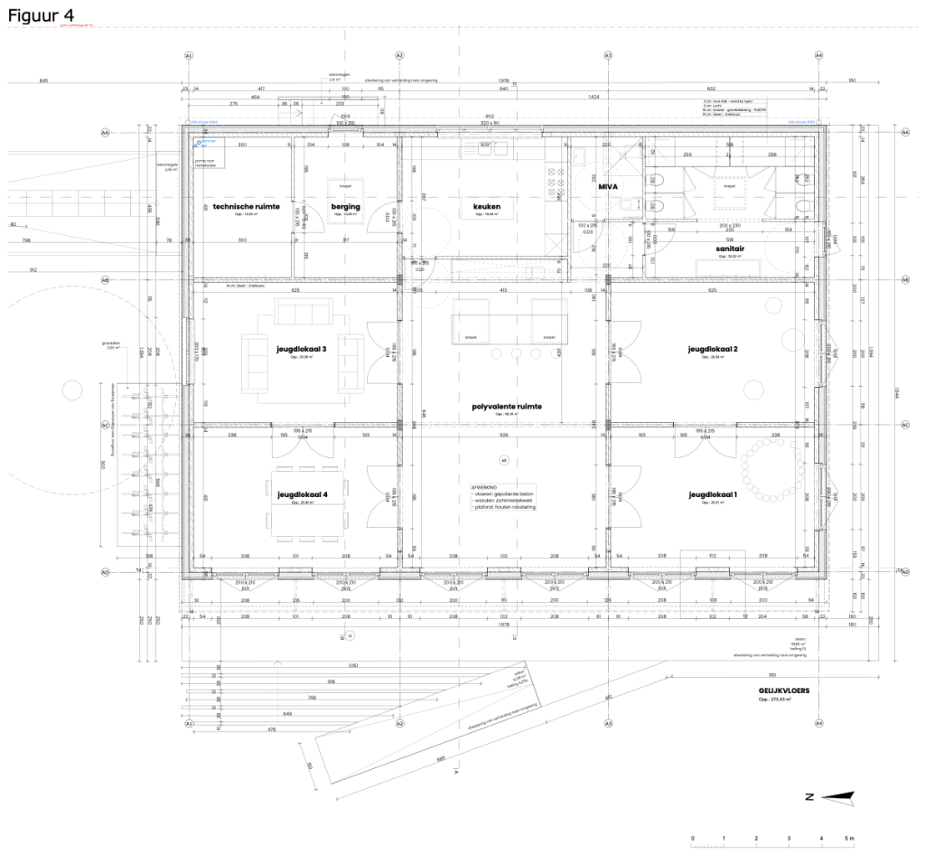
Het was dus al een tijd duidelijk dat Scouts Sint-Paulus en Scouts Intakt Leuven toe waren aan een nieuwe thuis. Daarom werkt een enthousiaste en geëngageerde groep oud-leden en ouders, samen met stad Leuven en architectenbureau Czaar, reeds 10 jaar aan nieuwe plannen. De huidige lokalen worden afgebroken en een duurzame nieuwbouw wordt voorzien. Beide groepen willen hun volledige werking op het Lemmekesveld samenbrengen. Op de huidige locatie van de lokalen was het om verschillende redenen niet mogelijk om de nodige riolering en nutsvoorzieningen volgens de actuele normen te voorzien. Na uitgebreide studie en overleg met Stad Leuven werd gekozen voor plaatsing bovenaan het Lemmekesveld aansluitend aan de parking (fig. 1). Om de impact van de nieuwe lokalen op het Lemmekesveld en de buurt te minimaliseren wordt een verdieping ingegraven en zo veel mogelijk gekozen voor natuurlijke materialen (fig. 2). In de benedenverdieping komt een ruime materiaalberging (fig. 3). Er is gekozen om niet voor elke tak van een eigen vast lokaal te voorzien, maar om met de beschikbare ruimte maximaal in te spelen op de noden tijdens het scoutsjaar en op jaarlijkse evenementen. Op het niveau van het Lemmekesveld komt er daarom naast 2 vaste lokalen een polyvalente zaal die door middel van wegneembare wanden flexibel kan opgesplitst worden in 3 afzonderlijke lokalen (fig. 4). Aansluitend aan de polyvalente ruimte wordt een volledig uitgeruste keuken en voldoende sanitair voorzien. We streven naar een volledige toegankelijkheid en onafhankelijkheid van rolstoelgebruikers binnen het gebouw voor zowel het gebruik van lokalen, keuken als sanitair. Samen met stad Leuven bekijken we de mogelijkheden om de nieuwe lokalen te verhuren aan andere organisaties. Zo kan de speelpleinwerking van Heverlee er hun vakantie-activiteiten organiseren, maar zullen ook andere verenigingen en de buurtwerking ervan gebruik kunnen maken voor vergaderingen of (buurt)activiteiten. We blijven daarover in nauw overleg met de Matadi-buurt. 

In 2021 werd een eerste bouwaanvraag goedgekeurd door stad Leuven, maar geschrapt door de provincie Vlaams-Brabant. Een nieuwe bouwaanvraag, die voldeed aan de opmerkingen van de provincie, werd goedgekeurd door stad Leuven in 2024 en er werd geen beroep tegen aangetekend. De vzw ‘Sint-Paulus Derde Leuven’ (0418.849.661), opgericht in 1978, zal als bouwheer voor dit project optreden. De vzw is eigenaar van 2 percelen grond die grenzen aan het parkgebied Lemmekesveld (kadaster 12-E-20-S-12 en 12-E-20-T-12), waarop de huidige lokalen staan. Ondertussen werd een erfpacht overeenkomst uitgewerkt tussen KU Leuven, stad Leuven en de vzw over deze percelen en het perceel waarop het project zal gebouwd worden. We kunnen dus nu eindelijk van start gaan.

De realisatie van dit project wordt ondersteund door stad Leuven en CERA. Tegelijk dragen we als scoutsgroep ook zelf een deel van de financiering. Door de stijgende materiaalprijzen is onze bijdrage gegroeid van 30% in 2021 naar 45% vandaag. Daarom wordt de eerste fase momenteel beperkt tot een regen- en winddichte ruwbouw. In een volgende fase werken we de technieken en de binneninrichting verder af. 

U kan op verschillende manieren uw schouders onder dit project zetten:

  • via een fiscaal aftrekbare gift via Scouts en Gidsen Vlaanderen*
  • via een renteloze lening vanaf 1000 €**
  • door een handje toe te steken tijdens de werken
  • via ondersteuning vanuit uw professionele omgeving (we zijn onder andere op zoek naar hulp bij en materiaal voor binnenafwerking en technieken zoals verwarming, zonnepanelen, elektriciteit, sanitair en keukeninrichting)
  • via service-clubs of andere fondsen, die een goed doel willen steunen
  • door het opzetten van een originele geldactie

U kan ons steeds contacteren via mail (vzw@scoutssintpaulus.be) of via het webformulier (https://forms.gle/QHwPnbSPfMo2M8949).

Samen bouwen we aan een sterke en warme toekomst voor onze scoutsgroep en alle leden.

Met vriendelijke groeten,
De bouwgroep van Scouts Sint-Paulus en Intakt Leuven

* Een fiscaal aftrekbare gift van 40 € of meer kan gestort worden op het rekeningnummer BE55 4096 5041 4144 (KREDBEBB) van Scouts en Gidsen Vlaanderen. Voor een vlotte verwerking vragen we om volgende mededeling te gebruiken: Gift, FAG 5-444, Nieuwe Lokalen St Paulus-Intakt, ‘uw mailadres’
(waarbij ‘uw mailadres’ het adres is dat u gebruikt om uw rijksregisternummer door te geven; @ mag vervangen worden door (a)). Op die manier kan Scouts en Gidsen Vlaanderen de gift correct toewijzen, het bedrag aan ons doorstorten en een fiscaal attest bezorgen.
Daarnaast vragen zij éénmalig uw naam (zoals op het bankafschrift) en rijksregisternummer te mailen naar giften@scoutsengidsenvlaanderen.be, in het kader van de wettelijke verplichtingen.
Voor vennootschappen wordt het rijksregisternummer vervangen door het ondernemingsnummer.

** Voor renteloze leningen vragen we een minimaal engagement van 1000 euro. Deze wordt terugbetaald over 20 jaar, met start van de afbetaling na 1 jaar (vanaf 2027). Dit betekent een jaarlijkse terugbetaling van 50 euro per schijf van 1000 euro, aangevuld met een warm scoutsgevoel. Met de renteloze leningen willen we in totaal 160.000 euro ophalen. Dit bedrag kan door de scoutswerking worden terugbetaald via de bestaande jaarlijkse acties (zoals wafelenbak, quiz en BBQ), zonder de jaarwerking extra te belasten.  Momenteel hebben we al een engagement voor 55 000 euro (zie figuur  5).